Standart Prefabrik Ev
1.100.000 ₺
- Duvarlar 125X250X10CM Pres Panel Sistem
- İç -Dış Duvar Kalınlıkları : 10cm
- Tavan Yükseklik : 2.50mt
- Tavan : Düz Alçıpan
- Dış Kapı : Çelik Kapı
- İç Kapılar : Lamine Panel Kapı
- Pencereler : 120x100 - 120x150 Beyaz 70lik seri Çift cam
- Elektrik Tesisatı : Sıva Altı.Anahtar, priz, sigortalar vs
- Su Tesisatı : Sıva altı. Temiz Su tesisatı
- Boya : İki Kat İç-Dış Boya
- Çatı : Çatı Makasları Galvenize çelik, trapez sac,saçak, oluk




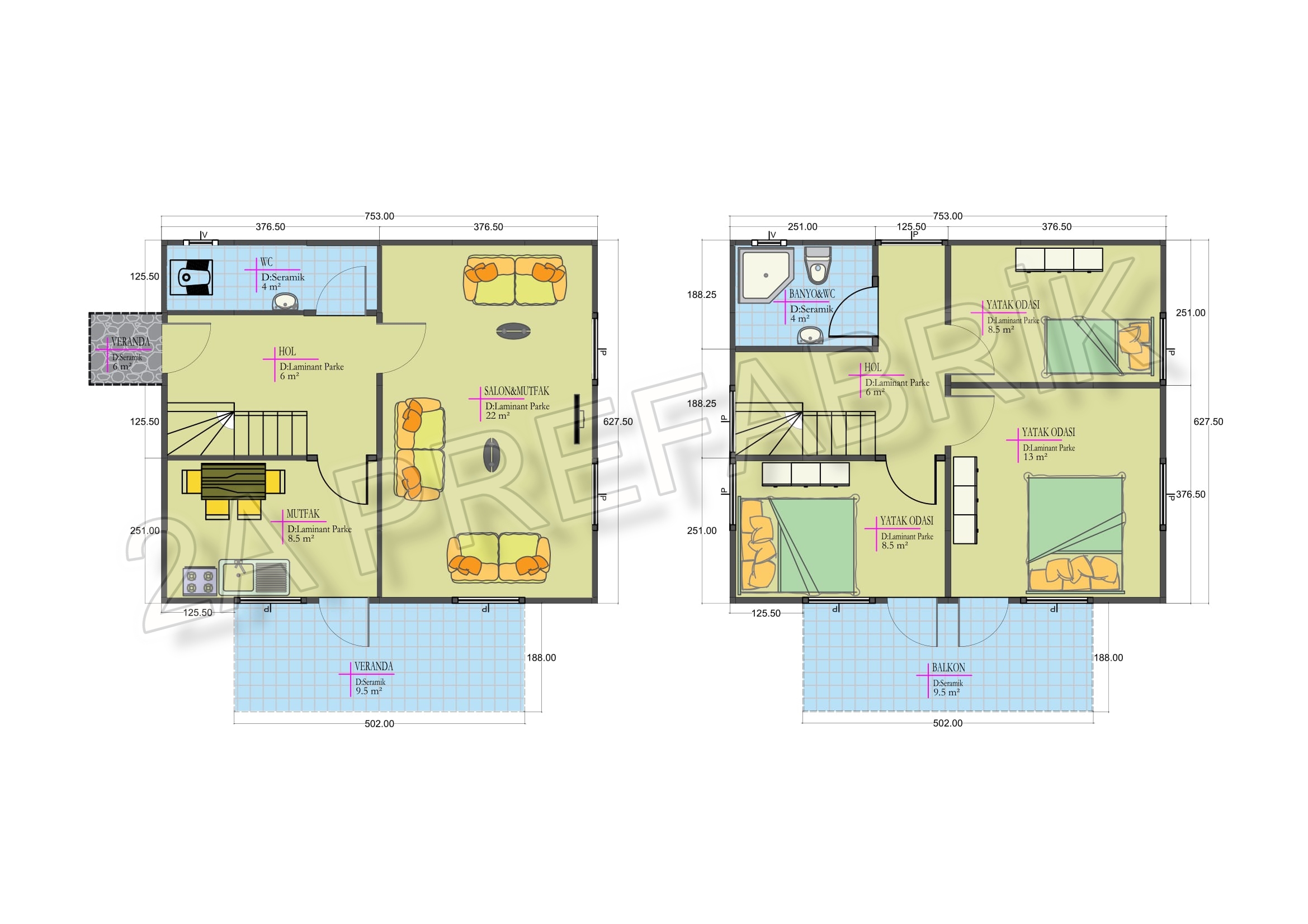
116 metrekare iki katlı prefabrik ev özellikle minimalist yaşam anlayışına sahip olanlar için ideal evlerdir. 3+1 oda sayısına sahip olan prefabrik ev, 250 cm tavan yüksekliğine sahiptir, pencereler PVC ile kaplıdır.Özellikle kentin biraz uzağında kalarak yaşamını sürdürmek isteyenler için ideal olan bu tek katlı prefabrik ev, güvenli ve rahat taşınabilirliği sayesinde istediğiniz konuma yerleştirilebilir.
Hızı ve kolay uygulanabilirliği ile öne çıkan prefabrik evler, son dönemlerde fazlaca talep görmeye başladı ve oldukça fazla tercih ediliyor. Modern mimari anlayışı ile tasarlanabilen prefabrik evler, uygun fiyat seçenekleri ile size sahip olma fırsatı sunuyor.







